家賃の他に、町内会費9,500円(1年)、上水道代が月ごとに5,000円がかかります。
【賃貸一戸建】山形市蔵王半郷結城荘 2DK
- 賃料
- 5万円
- 一戸建
- 間取
- 2DK
- 保証金
- 2ヶ月
|
|
|
|
| 所在地 | 山形県山形市山形市蔵王半郷 【賃貸一戸建】山形市蔵王半郷結城荘 |
|---|---|
| 交通 | JR奥羽本線蔵王駅 バス(松尾前バス停 バス停) 徒歩400m 徒歩4分 |
| 築年月 | 2019/05 | 新築/中古 | 中古 |
|---|---|---|---|
| 建物面積 | 81.00m² | 計測方式 | |
| バルコニー | m² | 向き | |
| 建物階数 | 部屋階数 | 1階 | |
| 部屋・区画番号 | 総戸/区画数 | 1 | |
| 建物構造 | 木造 | ||
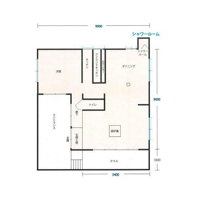
| 間取内容 | 洋 6・6 |
||
| 住宅保険料 | 20000円 1年 | 修繕積立金 | 円 |
| 駐車場 | 取引態様 | 仲介 | |
| 引渡/入居時期 | 即時 2026/02 上旬 | 現況 | 空家 |
| 周辺環境 | 蔵王第二小学校 蔵王第一中学校 | ||
| 設備・条件 | |||
| 設備・条件 備考 | バス・トイレ : シャワールーム、トイレ キッチン : カウンターキッチン、ガスコンロ可 設備・サービス : バイク置き場、フローリング、プロパンガス、冷房、ウッドデッキ、駐輪場、照明器具 維持費等 上下水道代:10,000円/月、電気代:15,000円/月 保険等 要 1年 20,000円 借家人賠償及び火災保険 契約期間:2年(更新料:1,000円) 車、自転車、バイクを停められれる駐車場あります。 賃貸保証等:利用可(弊社は2社お取り扱いしております。色々なプランがありますので、ご利用の際にお尋ね下さい。(ジェイリース株式会社・株式会社ワンダーストリーム)) 管理形態/管理員の勤務形態:-/- 非喫煙者限定 蔵王半郷の自然包まれた物件です。近くに川や神社があり、散歩や読書及び楽器等の趣味をお持ちの方にお勧めです。 (楽器の演奏については、オーナー様との要相談になります。) 蔵王スキー場にアクセスがいいです。 ペットについては、オーナー様と相談してください。 |
||
| 物件番号 | 6977036842 | ||
Loading...
※物件掲載内容と現況に相違がある場合は現況を優先と致します。
お問い合わせはこちら
この物件についてもっと詳しく知りたい方は、電話0237-47-1706、または下記のお問い合わせフォームから、お問い合わせください。
電話でのお問い合わせは9時〜18時まで対応しております。
株式会社ハウスプランナー不動産
〒999-3747
山形県東根市板垣大通り29号
山形県東根市板垣大通り29号
TEL:0237-47-1706[営業時間:9時〜18時]
宅建免許番号:山形県知事(5)第1983号




















